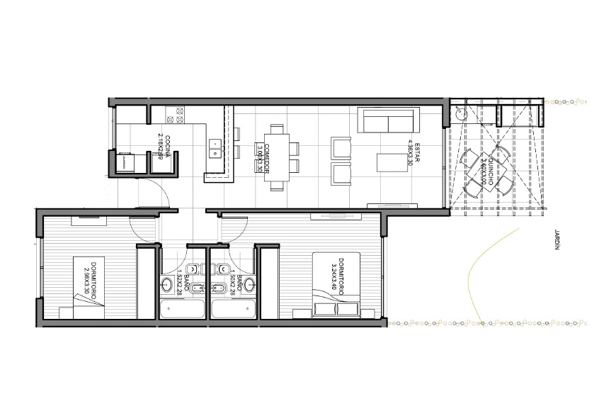
- Tipo: 3 Ambientes
- Area: 71m2
N2 | N9
Excelente departamento de 3 ambientes con jardín propio
ubicados en Planta Baja, 2 baños (1 en suite), lavadero
independiente, quincho con parrilla, lavadero y cochera
BLOQUE NORTE
La calefacción es por equipos AA Split Frio Calor (no incluidos) Se dejarán en cada ambiente preinstalaciones para ser colocado el equipo correspondiente.
5 bloques de departamentos más casas individuales Norte/ Sur/Este /Oeste
La 1era etapa de venta son los bloques Norte y Oeste ( todas las medidas de las unidades son aproximadas y pueden llegar a tener una minima variación).
71 M2 cubiertos + 10 m2 de quincho + 43 m2 de jardín + 12,5 m2 de cochera.

