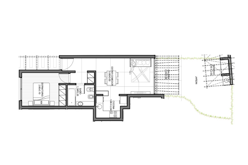
- Tipo: 2 Ambientes
- Area: 42m2
W2 a W11
Impecable departamento de 2 ambientes ubicados en Planta
Baja con jardín propio, quincho, parrilla, y balcón.
Cochera.
BLOQUE OESTE
La calefacción es por equipos AA Split Frio Calor (no incluidos) Se dejarán en cada ambiente preinstalaciones para ser colocado el equipo correspondiente.
5 bloques de departamentos más casas individuales Norte/ Sur/Este /Oeste
La 1era etapa de venta son los bloques Norte y Oeste ( todas las medidas de las unidades son aproximadas y pueden llegar a tener una minima variación).
42 m2 cubiertos + 1,6 m2 semicubiertos + 5 m2 de quincho + 14 m2 de jardín + 12,5 m2 de cochera.

