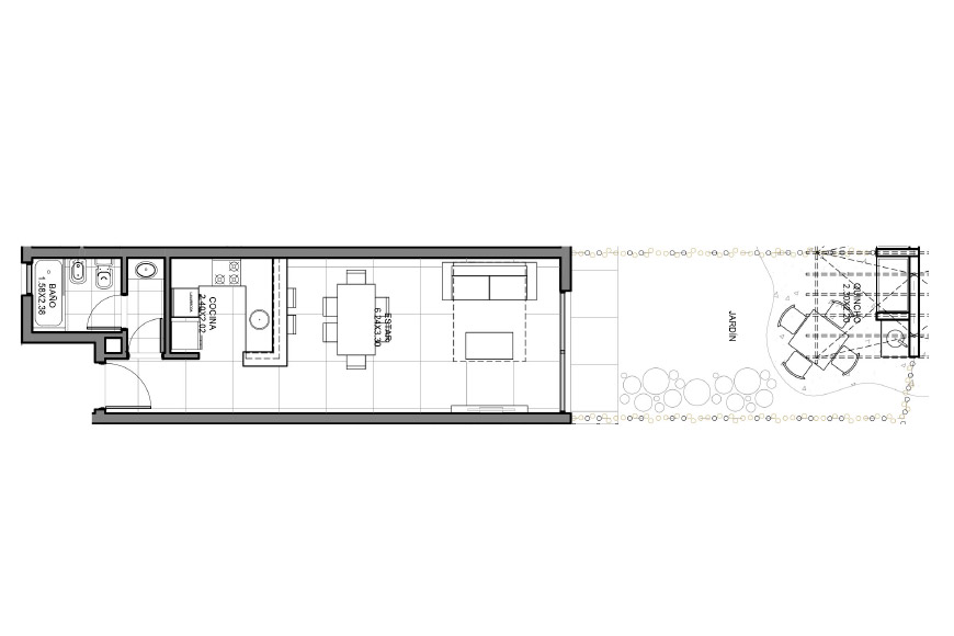
- Tipo: Monoambiente
- Area: 35m2
N4 y N7
Amplio Monoambiente ubicado en Planta Baja con 1 baño,
jardín propio, quincho con parrilla y cochera.
BLOQUE NORTE
La calefacción es por equipos AA Split Frio Calor (no incluidos) Se dejará la preinstalacion para ser colocado el equipo correspondiente.
5 bloques de departamentos más casas individuales Norte/ Sur/Este /Oeste
La 1era etapa de venta son los bloques Norte y Oeste ( todas las medidas de las unidades son aproximadas y pueden llegar a tener una minima variación).
35 M2 cubiertos + 5 m2 de quincho + 20m2 de jardín + 12,5 m2 de cochera.

