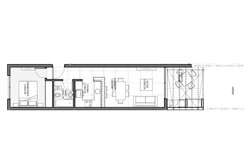
- Tipo: 2 Ambientes
- Area: 42m2
N5 y N6
Impecable departamento de 2 ambientes ubicados en Planta
Baja con quincho con deck, parrilla y cochera
BLOQUE NORTE
Impecable departamento de 2 ambientes ubicados en Planta Baja con quincho con deck, parrilla y cochera.
5 bloques de departamentos más casas individuales Norte/ Sur/Este /Oeste.
La 1era etapa de venta son los bloques Norte y Oeste ( todas las medidas de las unidades son aproximadas y pueden llegar a tener una minima variación).
42 m2 cubiertos + 10 m2 de quincho + 25 m2 de jardín + 12,5 m2 de cochera

